Educação: Prefeitura de Lages apresenta projeto do novo Ceim Primeiros Passos à comunidade
13/02/2025 15:13:05
Fotos: Toninho Vieira / Artes projeto: Divulgação
Educação 13/02/2025 15:13:05
Educação: Prefeitura de Lages apresenta projeto do novo Ceim Primeiros Passos à comunidade
O valor estimado da obra é de R$ 5.187.000, provenientes do Fundo Nacional de Desenvolvimento da Educação (FNDE). Os recursos foram indicados pela prefeita Carmen Zanotto quando estava como Deputada Federal
A Prefeitura de Lages, por meio da Secretaria Municipal da Educação, apresentou, na noite desta quarta-feira (12 de fevereiro), o projeto do novo Centro de Educação Infantil Municipal (Ceim) Primeiros Passos. A explanação ocorreu durante reunião com pais e responsáveis pelas crianças e contou com a presença da prefeita Carmen Zanotto.
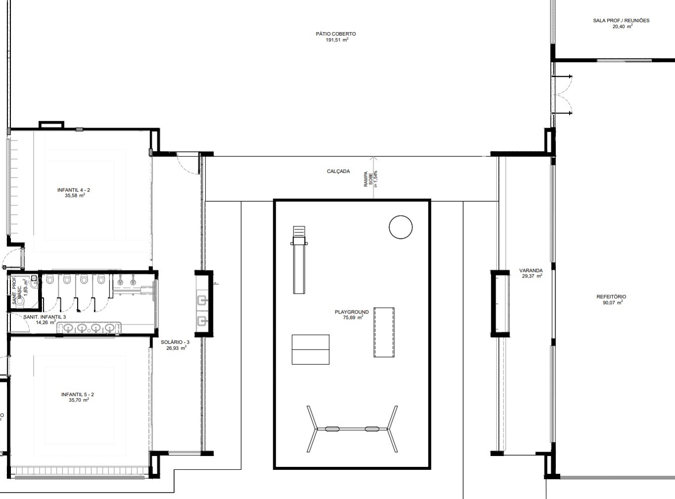
O novo Ceim Primeiros Passos será construído na avenida Corina Caon, bairro Ponte Grande. O projeto contempla dez salas de aula, sala multiuso, refeitório, lactário, cozinha, banheiros para Pessoas com Deficiência (PCD), playground e pátio coberto, com uma área total de 1.324,27 metros quadrados.
O valor estimado da obra é de R$ 5.187.000, provenientes do Fundo Nacional de Desenvolvimento da Educação (FNDE). Os recursos foram indicados pela prefeita Carmen Zanotto quando estava como Deputada Federal, e haverá contrapartida do município.
A prefeita Carmen Zanotto enaltece a necessidade de rapidez na tomada de decisões e a atenção especial que as crianças de até seis anos precisam para a formação completa de sua cognição. “Quanto mais rápido fornecemos informações ao Ministério da Educação, mais rápido é a liberação dos recursos. Os valores estão garantidos e o processo de elaboração da licitação está em andamento. Os resultados do investimento na educação infantil serão refletidos nas séries posteriores”, destaca a prefeita Carmen.
O secretário Municipal da Educação, Cristian de Oliveira, enfatiza a necessidade de entregar respostas as crianças e responsáveis, além de recordar as ações já realizadas pela Prefeitura de Lages. “No dia 26 de dezembro, a prefeita Carmen Zanotto estava em Brasília resolvendo as últimas pendências do Ceim Primeiros Passos e do Ceim Girassol. Conhecemos as necessidades das nossas crianças e alunos. Sabemos que precisamos dar respostas, sobretudo, as nossas crianças. Contratamos 1.040 professores temporários para iniciar a ano letivo com o quadro completo e garantimos uma merenda de qualidade a todas as unidades”, relata.
Josiane Melo, mãe de Isabelle Melo de Liz, lembra a luta dos responsáveis e a alegria de ver o projeto do Ceim Primeiros Passos em execução. “É uma luta, uma batalha que já dura mais de dez anos. Satisfação perceber o progresso e a atenção que a nova gestão está colocando para que a obra saia do papel. Na verdade só temos a agradecer”, sintetiza.
A expectativa de conclusão dos trabalhos é de 18 meses (um ano e meio) a partir da assinatura e entrega da ordem de serviço. O Ceim Primeiros Passos atualmente funciona em uma residência adaptada e está localizado na rua Carlos Gomes, n°: 54, bairro Coral.
Texto: Glaucir Borges
Fotos: Toninho Vieira
Artes projeto: Divulgação
Galeria
Agora Ficou mais fácil e Rápido Encontrar o que Você Precisa!